


Código da candidatura: 67206
Programa de Financiamento: Investimento RE-C02-i01 Programa de Apoio ao Acesso à Habitação - 1º Direito
Objetivo: Aquisição de 1 imóvel devoluto e posterior reabilitação, para promover o alojamento a agregados em condições indignas de habitação, elegíveis ao abrigo do Decreto-lei 37/2028 de 4 junho.
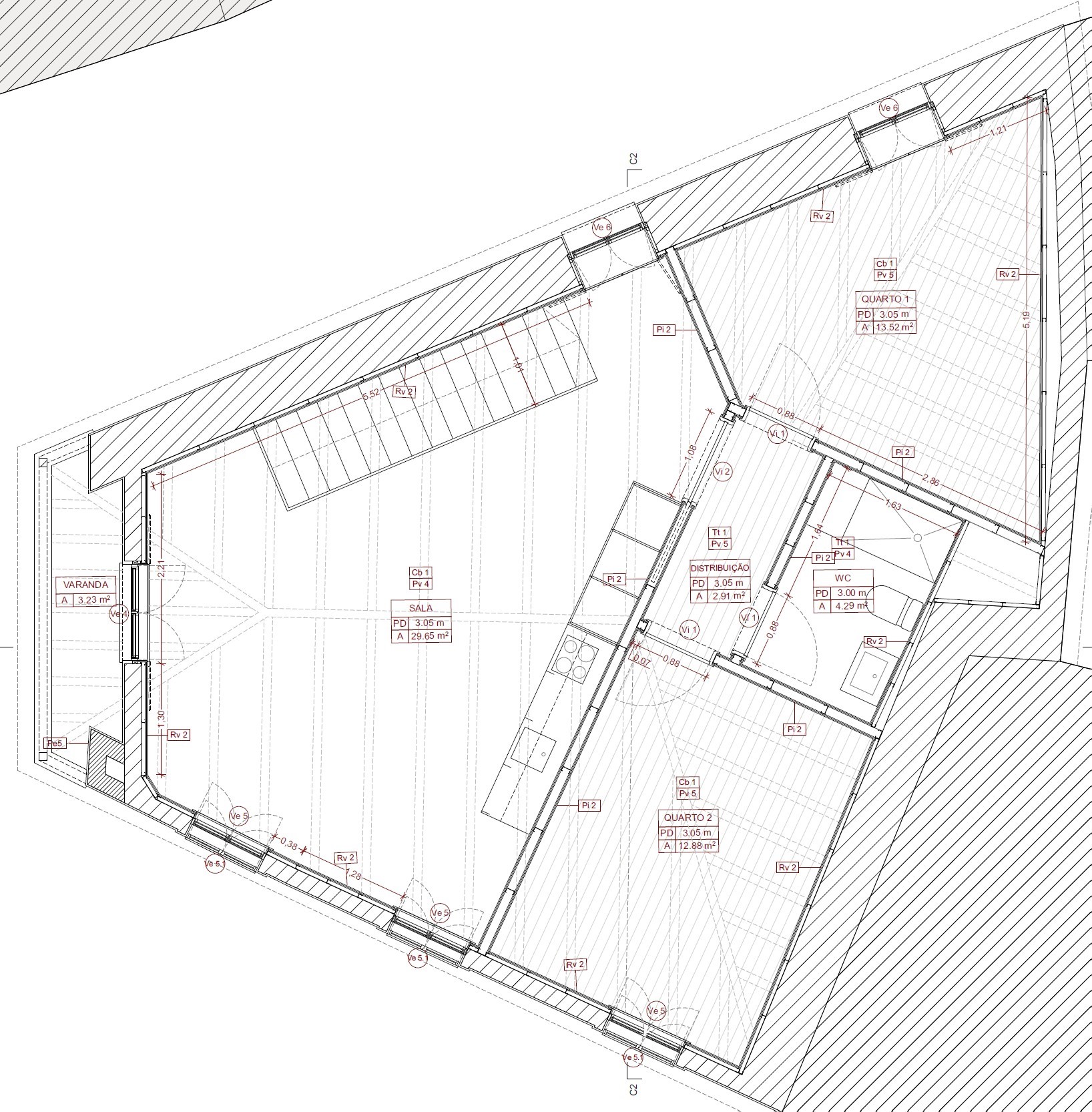
Nº de Fogos: 1 T1 + 1 T2
Valor da candidatura: 296.620,56 €
Data Prevista de Conclusão: junho 2026