





Código da candidatura: 62897
Programa de Financiamento: Investimento RE-C02-i01 Programa de Apoio ao Acesso à Habitação - 1º Direito
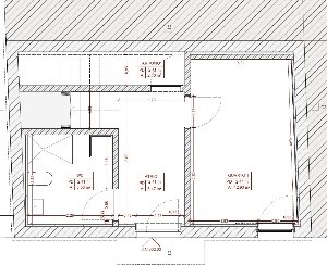
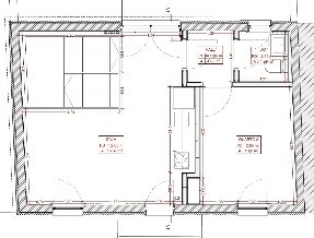
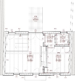
Objetivo: Aquisição e reabilitação de 2 imóveis, para promover o alojamento a agregados em condições indignas de habitação, elegíveis ao abrigo do Decreto-lei 37/2028 de 4 junho.
Nº de Fogos: 2 T2
Valor da candidatura: 224.463,12 €
Data Prevista de Conclusão: junho 2026